Welkom, bij Hoofdstraat 172
2351 AR, Leiderdorp
€795.000 K.K.


















































Wat maakt deze woning uniek?
One of a kind – wonen aan de Oude Rijn, midden in de historische Hoofdstraat
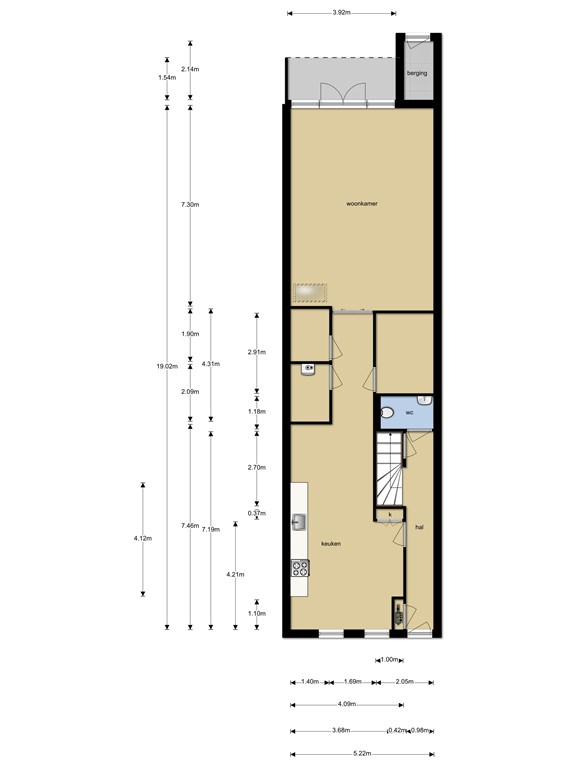
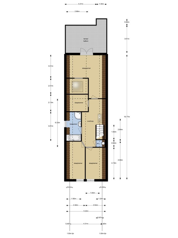
Aan de Hoofdstraat, een van de mooiste en meest karakteristieke straten van Leiderdorp, ligt deze bijzondere woning met een woonoppervlak van 172 m². Het huis kijkt uit over de Oude Rijn en bevindt zich op een plek waar het dorpse leven voelbaar is: de brug, de kleine winkels, het water en de oude gevels geven deze straat een unieke sfeer. Achter de voorgevel schuilt een verrassend ruim en karaktervol woonhuis met maar liefst zes kamers – een huis dat je echt zelf moe
Samengevat
Type
House
Bouwjaar
1900
Wonen
172 m²
Perceel
151 m²
Kamers
4
Slaapkamers
3
Bekijk alle kenmerken van deze woning
Overdracht
Vraagprijs€795.000 K.K.
Vraagprijs per m²€4.622,09
StatusBeschikbaar
AanvaardingIn overleg
Bouwjaar
Soort woningEengezinswoning, Tussenwoning
Bouwjaar1900
Aangeboden sinds29-09-2025
Waar kom ik straks te wonen?
Loading Map…
Hoe duurzaam is deze woning?
Deze woning heeft energielabel: C
Woningen met een energielabel C zijn in de meestal geïsoleerd, maar het kan beter. Controleer ook gelijk of de beglazing gemoderniseerd kan worden. Zijn deze punten al opgepakt? Dan is het raadzaam om te onderzoeken of duurzame energiebronnen zoals zonnepanelen geplaatst kunnen worden.
Type isolatieDakisolatie, insulationType.WallInsulation, Spouwmuurisolatie, Dubbel glas
Verwarmingsinstallatieheating.Boiler
Warm waterwarmWater.Boiler, SolarWaterHeater
Energielabel geldig tot07-09-2028
Hoe werkt het verkoopproces?
Stap 1: de woning bekijken
Al geïnteresseerd in deze woning? Plan direct een bezichtiging via de onderstaande knop.
Plan een bezichtigingBestudeer de stukken
Plaats een bod
Right of award
Vrijgave Biedlogboek
Stap 2: de stukken bestuderen
Voorafgaand aan de bezichtiging is het aan te raden om alle stukken goed te bestuderen als onderdeel van de onderzoeksplicht.

Stap 3: een bod uitbrengen
Is dit de volgende droomwoning? Breng dan eenvoudig digitaal een bod uit in het Biedlogboek van Eerlijk Bieden

Veelgestelde vragen
Wanneer kan de notariële overdracht van Hoofdstraat 172 plaatsvinden?
De verkopers van Hoofdstraat 172 hebben de volgende voorkeur voor notariële overdracht aangegeven: Consultation.
Is er parkeergelegenheid in de buurt van Hoofdstraat 172?
In de buurt van Hoofdstraat 172 zijn de volgende parkeermogelijkheden beschikbaar: Publicparking.
Contact met de makelaar

Obèr Makelaardij
Vragen aan de makelaar over dit pand of wilt u direct een bezichtiging plannen? Gebruik dan het bijgevoegde contactformulier.
Hoe kunnen wij u van dienst zijn?
Misschien vindt u deze woningen ook interessant?

Weegbreelaan
2381 JE Zoeterwoude
€700.000 K.K.
Loevestein
2352 KM Leiderdorp
€875.000 K.K.
Reviusdreef
2353 BE Leiderdorp
€500.000 K.K.

